数控车床精确对刀方法!
发布时间: 2023-06-11 21:15
本文就是一篇非常实用的文章,文中首先介绍了数控车床常用的“试切对刀法”的原理及对刀思路;接着,介绍了华中世纪星车削数控系统的四种手动试切对刀方法...
本文就是一篇非常实用的文章,文中首先介绍了数控车床常用的“试切对刀法”的原理及对刀思路;接着,介绍了华中世纪星车削数控系统的四种手动试切对刀方法;为改进其对刀精度,根据“自动试切→测量→误差补偿”的思路,设计出了用程序控制的自动试切法,并总结介绍了四种精确对刀方法
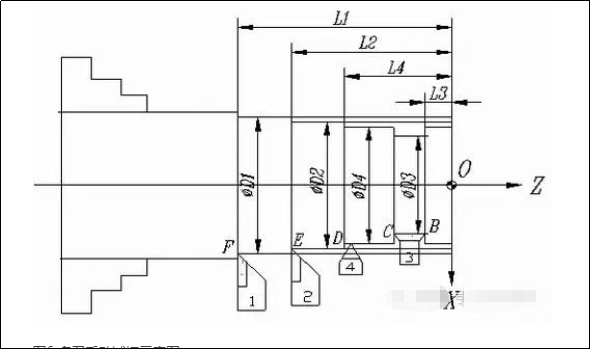
1数控车试切对刀法的原理及对刀思路深入理解数控车床的对刀原理对于操作者保持清晰的对刀思路、熟练掌握对刀操作以及提出新的对刀方法都具有指导意义。对刀的实质是确定随编程而变化的工件坐标系的程序原点在唯一的机床坐标系中的位置。对刀的主要工作是获得基准刀程序起点的机床坐标和确定非基准刀相对于基准刀的刀偏置。本文作以下约定来说明试切法对刀的原理与思路:使用华中世纪星教学型车削系统HNC-21T(应用软件版本号为5.30);以工件右端面中心为程序原点,用G92指令设定工件坐标系;直径编程,程序起点H的工件坐标为(100,50);刀架上装四把刀:1号刀为90°外圆粗车刀、2号基准刀为90°外圆精车刀、3号刀为切断刀、4号刀为60°三角螺纹刀(全文所举实例均与此相同)。如图1所示,基准刀按照“手动试切工件的外圆与端面,分别记录显示器(CRT)显示试切点A的X、Z机床坐标→推出程序原点O的机床坐标→推出程序起点H的机床坐标”的思路对刀。根据A点与O点的机床坐标的关系:XO= XA-Φd,ZO =ZA,可以推出程序原点O的机床坐标。再根据H相对于O点的工件坐标为(100,50),最后推出H点的机床坐标:XH=100-Φd,ZH= ZA+50。这样建立的工件坐标系是以基准刀的刀尖位置建立的工件坐标系。
2)用基准刀试切工件右端面,记录试切点A的Z机床坐标;试切工件外圆,记录A点的X机床坐标,退刀后停车,测量已切削轴段外径ΦD。
3)基准刀按记录值通过“点动+步进”方式重回A点,在刀偏表的试切直径和试切长度栏内分别输入ΦD和零。
4)退刀,选择非基准刀的刀号手动换刀,让各非基准刀的刀尖分别在主轴转动下通过“点动+步进”方式目测对准A点,然后分别在相应刀偏号的试切直径栏和试切长度栏内输入ΦD和零,则各非基准刀的刀偏置会在X、Z偏置栏处自动显示。
5)基准刀重回A点后,MDI运行“G91 G00/或G01 X[100-ΦD] Z50”,使其处于程序起点位置。
2)基准刀按记录值通过“点动+步进”方式重回试切点A。
3)在图4界面按F1键“X轴置零”,按F2键“Z轴置零”,则CRT显示的“相对实际坐标”为(0,0)。
4)手动换非基准刀,使其刀尖目测对齐A点,这时CRT上显示的“相对实际坐标”的数值,就是该刀相对于基准刀的刀偏置,用▲、键移动蓝色亮条到非基准刀的刀偏号,分别将其记录并输入到相应位置。
5)与前述步骤(5)相同。
1. 基准刀修正程序起点位置后,再单独修调各非基准刀刀偏置法如图3所示,对刀步骤如下:1)基准刀处于粗略对刀后的程序起点位置,将各非基准刀刀偏置输入到刀偏表的相应位置。
2)调用加工ΦD2×L2的O1000程序试切。
3)测量切削轴段的直径与长度,与程序指令值比较,求出误差。
4)步进移动或MDI运行误差值,修调程序起点位置。
5)根据测量尺寸,动态修改O1000程序下划线的指令数值并保存程序,重复步骤(2)、(3),直至基准刀程序起点被修正在精度允许范围内为止,记录修正后程序起点的机床坐标并将坐标置零。
6)分别调用O1001(1、4号刀)、O1002(3号刀)程序试切,测量各段直径ΦDi和长度Li(i=1,4,3)。
7)按表3所示方法进行误差补偿。
8)重复步骤(6)至步骤(7),直至加工误差在精度范围内,基准刀停在程序起点位置不再移动。
2)至(5)步与第一种精确对刀方法的同序号的对刀步骤相同。
(6)分别换非基准刀,把粗略对刀记录的刀偏置当作非基准刀程序起点的相对坐标,调用O1000程序试切,分别测量各段直径ΦDi和长度Li(i=1,4,3),与程序指令值比较,求出差值。
(7)步进移动或MDI运行刀架进行误差补偿,分别修调各非基准刀的程序起点位置。
(8)重复步骤(6)和(7),直至各非基准刀程序起点的位置在精度允许范围内为止。
(9)将CRT显示的相对坐标当作新刀偏置,输入到刀偏表的对应刀偏号的X、Z偏置栏内。此法简单方便,修正的刀偏置直接由CRT显示的机床相对坐标得到,避免了人工计算的失误,对刀精度较高。3. 修调基准刀程序起点位置后,再同时修调全部非基准刀刀偏置法此方法与第一种精确对刀方法基本相同,唯一不同之处在于步骤(7)中调用的程序是同时调用了三把刀加工的O1003程序(O1004去掉2号刀加工段为O1003程序),其余步骤相同。6四把刀同时修调法如果采用相对刀偏法粗略对刀,先将得到的各非基准刀的刀偏置输入到刀偏表的相应位置,运行四把刀加工的O1004程序,分别测量各段直径ΦDi和长度Li(i=2,1,4,3),求出加工误差。对基准刀,以MDI运行或步进移动刀架补偿误差值,修调程序起点位置;对非基准刀,一方面在原刀偏置的基础上修正刀偏置,将新的刀偏置重新输入到刀偏表的X、Z偏置栏内;另一方面还应将基准刀的加工误差填入到该行的磨损栏内。如果采用绝对刀偏法粗略对刀,调用O1005程序试切,将各刀的加工误差补偿在其对应刀偏号的磨损栏内。
- 上一条:怎么着手学习数控机床?老师傅经验之谈!
- 下一条:数控铣床铣圆怎么编程
推荐资讯
相关新闻
最新信息
赞助商广告位

